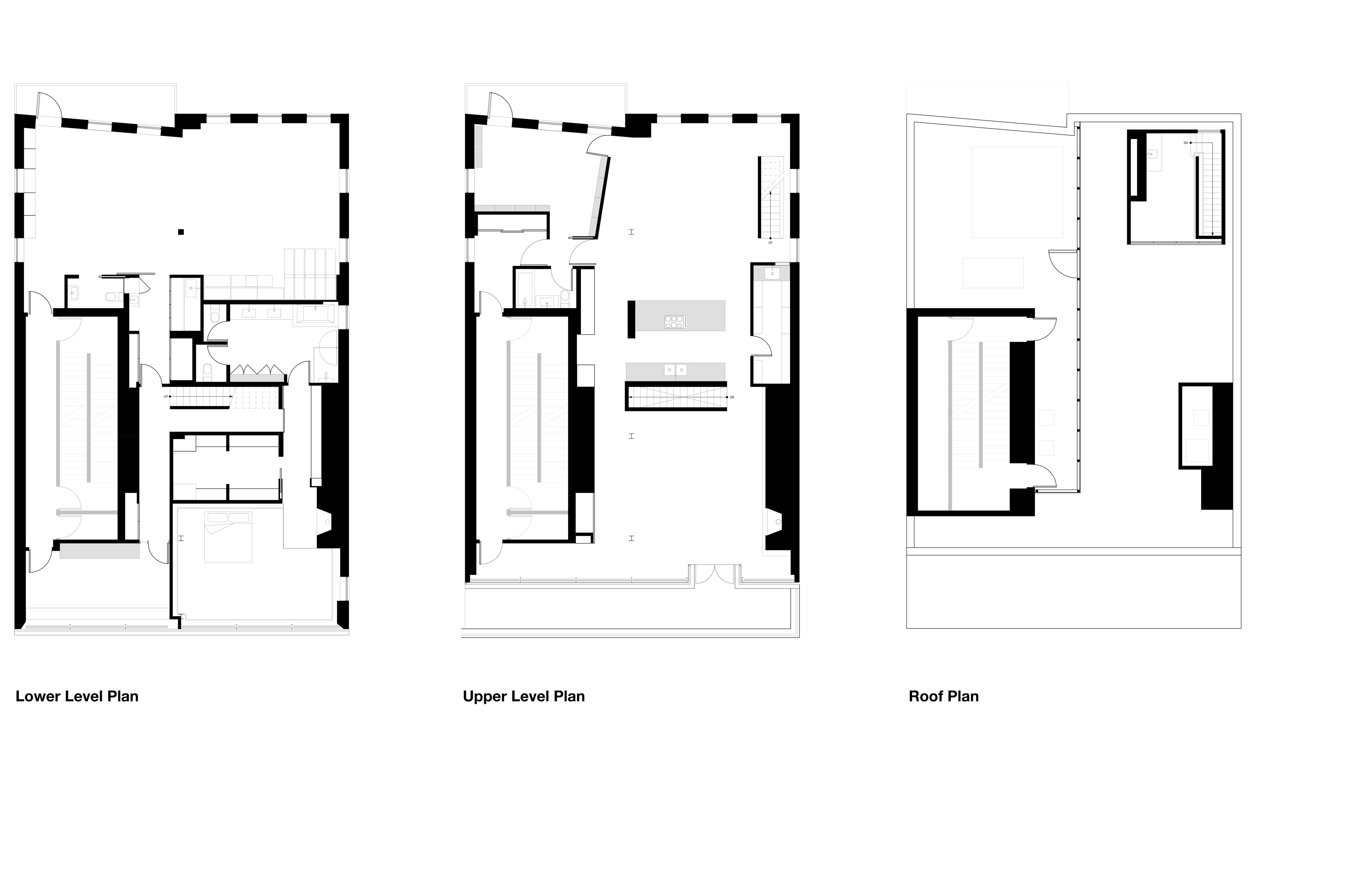
For artist Cindy Sherman's triplex penthouse in the West Village, we wanted to unify and distill the architectural envelope by utilizing a limited palette of humble materials. The boldest of these gestures was covering the walls and ceilings in a highly textured popcorn plaster that one typically associates with 1970s motels in the Midwest. Deviating from the typical gallery approach, the textured plaster treatment still provides a uniform backdrop for Sherman’s extensive art collection. The open kitchen garners its own sense of place within the overall expanse of the apartment through the singular use of stainless steel for the cabinetry, work surfaces, kitchen island, appliances, and even the custom light fixtures that crown the space.







