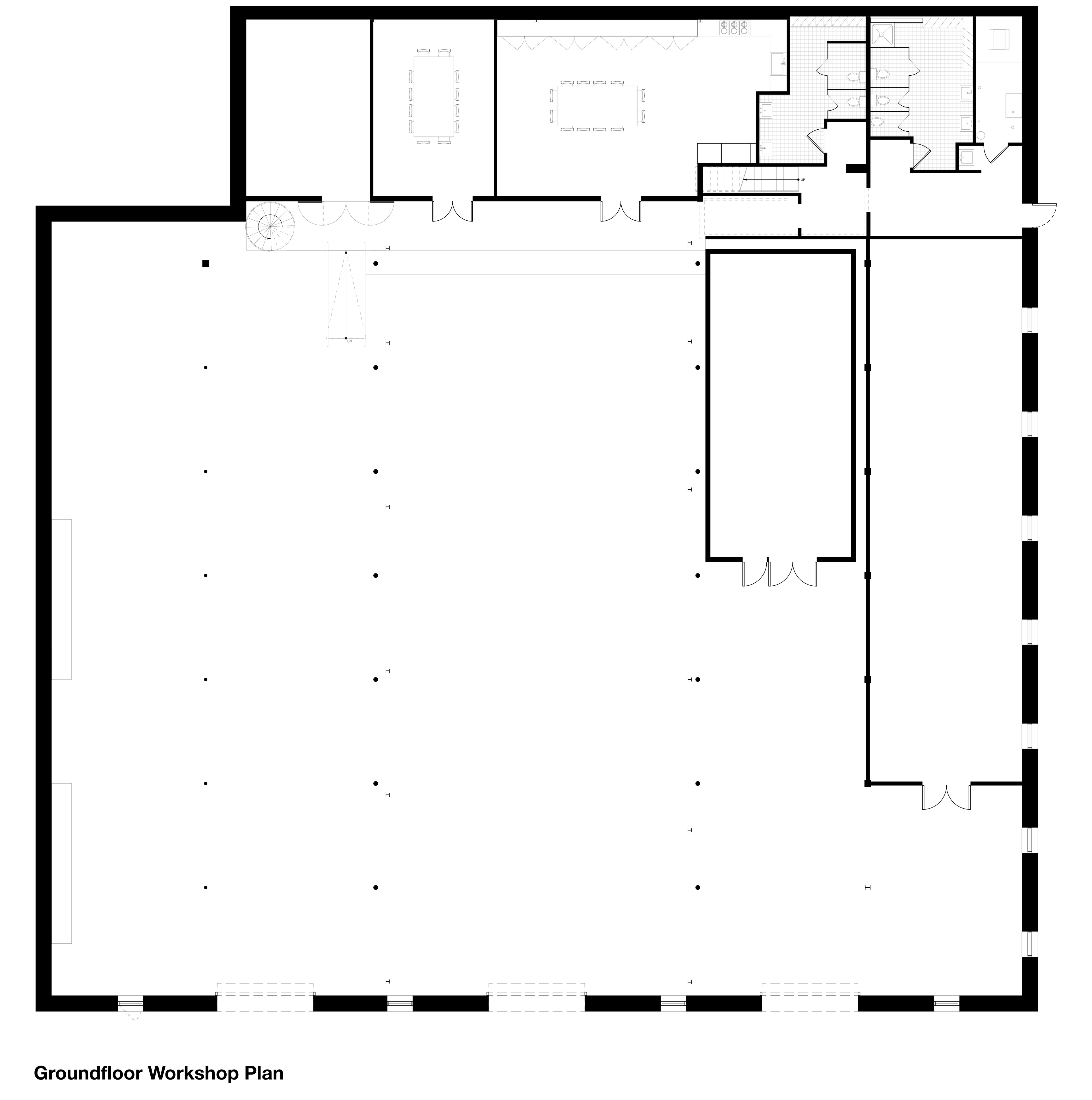
Located in Red Hook, Brooklyn, this 1859 landmarked warehouse, one of the most architecturally significant buildings in the neighborhood, was adapted to facilitate the complex creative process and workflow of artist Carol Bove and her team. A wide range of purposes was accommodated in the 15,000-square foot industrial space, including a state-of-the-art metal shop, a powder coating booth, and administrative areas for the staff, all illuminated via historic and newly-designed skylights.










